Vanzare Directa
Distribuie

Vand duplex frumos, bine construit, 221mp, 525mp teren in Salicea (Cluj)

PRET: 295 EUR
Vizualizări 3218
28.04.2026
Proprietar
PRET: 295 EUR -28.04.2026
Vizualizări 3218

Chirii si Vanzari Imobiliare

Case de vânzare

4 sau mai multe

Descriere

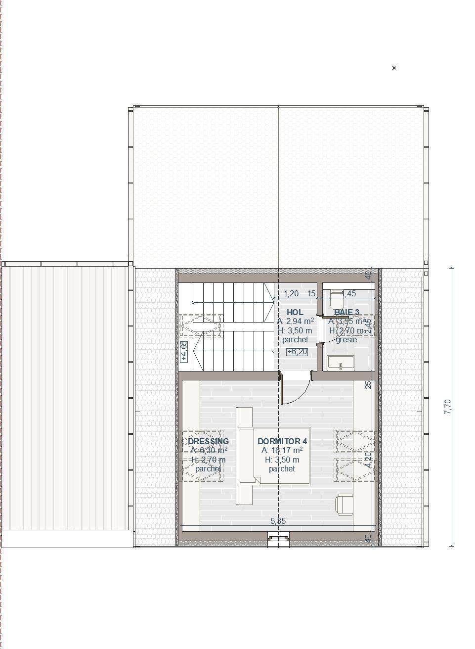
Persoana fizica, vand in Salicea duplex nou (2025), modern, solid, bine construit. Locatie excelenta, centrala, 4 km fata de Faget, 17km fata de Piata Unirii din Cluj-Napoca, acces facil. Casa are 4 dormitoare, 4 bai, bucatarie cu loc separat de luat masa, camera de zi. Suprafata desfasurata: 331,73mp, suprafata utila: 221 mp. Structura: demisol cu iesire la terasa si curte, parter, mansarda. Teren propriu 525mp, gard din metal si lemn scandinav, lacuit. Grad de finisare: exterior complet finisat, geamuri termopan Salamander, izolatie de 10 cm, decorativa; interior nefinisat, complet personalizabil; curte curata, nivelata, cu gazon (s-a efectuat o prima insamntare). Intabularea – estimam ca putem incepe din luna iulie demersurile. Pret: 295.000 de euro.

Vânzător

Dan

Proprietar

Pe site din ian. 2025

Preț: 295 EUR

Cluj, Cluj-Napoca

Recenzii
0 Recenzii de afisat
 
Anunțuri similare
Licitatie
Apartament 2 camere - Baneasa - Terasa S...
Proprietar

- 17.04.2026

94.500 EUR
Vanzare Directa
Apartament de Lux de inchiriat in Atriun...
Proprietar

Iași - 17.04.2026

450 EUR
Vanzare Directa
Vand Vila tip Triplex 4 Camere 2 Bai - D...
Proprietar

Bragadiru - 17.04.2026

75.000 EUR
Vanzare Directa
inchiriez in regim hotelier ultracentral...
Proprietar

- 17.04.2026

25 EUR
-->

Urmăriți-ne